イベント
現地案内会新規分譲地 現地案内会を開催 ~生駒市~

この春、住み続けたい街として人気の生駒市に、新しく分譲地を販売開始することになりました。
今回お披露目することになりましたのは、生駒市にある生駒台北Ⅴプロジェクト。
そこで今回は3週連続で新たに誕生した生駒市にある新規分譲地の案内会を開催いたします。
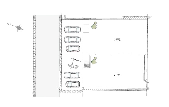
【生駒台北Ⅴ】
家族の未来を包む、余白のある住まいへ。
成熟を重ね、落ち着きと美意識が息づく生駒台の一角に、新たな分譲地が誕生します。
71坪超のゆとりある敷地は、光や風を存分に取り込み、伸びやかな開放感と心地よい暮らしを描く舞台として最適。
ここでは、ご家族のスタイルに合わせた自由なプランニングで、南向きの庭や大きな開口、家事動線に配慮した間取り、
室内とつながるアウトドアスペースなど、多彩な設計が叶います。
外観は和の美意識と現代のデザイン感覚を調和させ、街並みに美しく馴染む佇まいに。
周辺には生活利便施設や教育環境も整い、四季折々の自然を身近に感じられるこの場所で、長く愛される邸宅の価値を育み、家族の未来を豊かに紡ぎます。

詳しくはこちら↓↓↓
生駒台北Ⅴプロジェクト
ぜひ、現地に足をお運びいただき、あなただけの家で快適な暮らしをご想像ください。
少し気になるという方でも、下記イベント予約フォームよりご予約いただくとスムーズです。
また、別の分譲地にてモデルハウスを公開中。
マルマインハウスではどのような家を建てられるのか、実際に見たいという方は併せてお問い合わせください。
富雄北モデルハウス
また、同じ生駒市では現在、俵口町(稲葉台)に購入できるコンセプトハウスを建築中。
価格など詳しくはお問合せください。
開催情報
| イベント名 | 新規分譲地 現地案内会 ~生駒市~ |
|---|---|
| 日程 | 4月4日(土)~4月19日(日) |
| 時間 | 10時~17時の間でご希望のお時間 |
| 場所 | 生駒市生駒台北 |
物件概要
| 敷地面積 | 1号地 : 235.58㎡(71.26坪) 2号地 : 235.57㎡(71.25坪) |
|---|
物件性能
| UA値(外皮熱貫流率) | 標準仕様 : 0.46W/(㎡・K)以下 |
|---|---|
| 耐震等級 | 標準仕様 : 3 + 制震工法 ※高層ビルの制震装置に用いられる粘弾性体を用いた制震工法も取り入れています |
マルマインハウスの分譲プロジェクトとは
外観、外構デザインについては分譲地ごとに統一性を持たせていますが、
その他は注文建築と同じく間取りや設備は自由に選んで頂けます。
またデザインだけではなく、断熱・省エネ・耐震などの性能面についても考慮し、
お客様が安心で心地良く、健康で快適に暮らせる家をご提案しています。
土地探しからの注文建築よりもコスト面を抑えて建てられるのがマルマインハウスの分譲プロジェクトです。
マルマインハウスの標準仕様
耐震性能・・・耐震等級3+制震工法
温熱環境・・・HEAT20 G2グレード(地域区分6の場合のUA値0.46以下)断熱等性能等級では"6"
※さらにLIXILのSW(スーパーウォール)を使用した特有の快適性を備えたゼールマルマイン仕様もご用意しています。
(HEAT20 G2グレードのUA値0.46:地域区分6の場合)
詳しくはこちらもご覧ください https://marumine.net/service/orderhouse/spec
ZEHについて知りたい方はこちら https://marumine.net/service/orderhouse/zeh
HEAT20について知りたい方はこちら https://marumine.net/service/orderhouse/heat20
ゼールマルマインについてはこちら https://marumine.net/service/orderhouse/spec/zele
マルマインハウスについて詳しくはこちらもご覧ください https://marumine.net/service
マルマインハウスは補助金にも対応
現在、住宅を建てた際に出る国からの補助金は主に下記のようなものがあります。
〇 ZEH支援事業
〇 みらいエコ住宅2026事業(Me住宅2026)
これらの補助金について詳しくは下記ページの「ZEHに関連する補助金」をご覧ください。
https://marumine.net/service/orderhouse/zeh
予算枠や時期によっては補助金に申し込めないことがあります。
みらいエコ住宅2026事業は下記の補助金額が支給されます。(奈良県の主な地域が該当する5~8地域の場合)
● GX志向型住宅・・・110万/戸
条件:「断熱性能等級6以上」及び「一次エネルギー消費量の削減率が再エネを除いて35%以上、再エネを含めて100%以上」、「高度エネルギーマネジメントの導入」
※マルマインハウスの建築可能地域での場合
【対象:子育て世帯または若者夫婦世帯】
● 長期優良住宅・・・最大95万/戸
● ZEH水準住宅 ・・・・ 最大55万/戸
※「子育て世帯」=18歳未満の子を有する世帯
※「若者夫婦世帯」=夫婦のいずれかが39歳以下の世帯
こちらは予算枠が埋まってしまうと、申込みができませんので
特に注文住宅で家づくりを考えている方は補助金が出るタイミングを逃さないようにお気をつけください。
マルマインハウスは補助金対象の住宅を建築しており、もちろん申し込みができます。
また、両親や祖父母から住宅取得のために援助を受けた場合の税金のことや、
住宅ローンを利用して住宅を購入した場合に受けられる住宅ローン控除などについてアドバイスが可能。
物価高騰などで住宅購入になかなか踏み出せない、そんな方はぜひ一度ご相談ください。FP相談も受け付けています。